|
八贤祠尚贤祈福馆策展大纲
一、八贤祠平面示意图
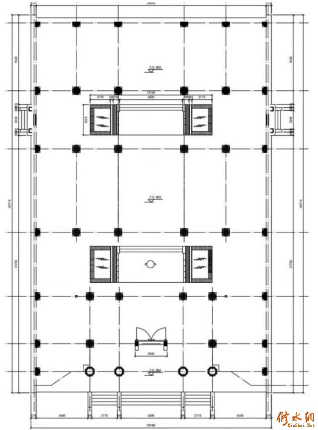
![]() 设计理念: 1、理念来源: A八贤祠的历史底蕴。元明清时云岩寺内设八贤祠,清代加祀乡贤,民国单独建立八贤祠,将祠堂文化融入。佛文化与贤文化有机结合、贤文化与祠堂文化有机结合。 B《礼记:·祭统》:“贤者之祭也:致其诚信与其忠敬,奉之以物,道之以礼,安之以乐,参之以时。” “贤者之祭也,必受其福。” ——立足贤文化特色,保护传承历史文脉。让八贤祠不仅要“建”起来,更要“活”起来。 2、将先贤祭祀融入新业态,新业态彰显传统文化。 ——通过业态的形式,实现和放大传统文化价值,让祠堂重现生机,创造新价值。 3、将贤文化、礼仪文化、祭祀文化、福文化有机融合,“贤者之祭也,必受其福。”创造性转化为 修水网 ——具有中国文化基因的、体验仪式感较强的新业态——祈福经济。 (贤文化贤文化是中华优秀传统文化的重要组成部分,它根植于中国社会的各个层面,从古代的乡村社会到现代的企业管理,再到当代的教育领域。 贤文化的核心在于推崇有德行、有才能、有声望的人,这些人在其所在的社区或组织中发挥着道德楷模和文化建设的作用。“敬贤、学贤、践贤”更是人们的不懈追求。“贤文化”基本内涵应该是:厚德良才、博爱仁仁、美善向上、与时俱进、奋发进取。 祭祀文化 祭祀就是按着一定的仪式,向神灵致敬和献礼,以恭敬的动作膜拜它,请它帮助人们达成靠人力难以实现的愿望。祭祀的对象就是神灵,万物有灵形成多神崇拜,也使人们的祭祀对象繁多。中国古代宇宙观最基本的三要素是天、地、人,乡贤是人的代表,值得祀崇。“上事天,下事地,尊先祖而隆君师,是礼之三本也”。 礼仪文化 礼仪是对礼节、仪式的统称。它是指在人际交往中自始至终地以一定的、约定俗成的程序、方式来表现的律己、敬人的完整行为。“国尚礼则国昌,家尚礼则家大,身尚礼则身正,心尚礼则心泰,事尚礼则事成。”我国传统文化中礼仪规范常被视作人生之本,立业之基。) 内容来自xiushui.Net 项目目标: 大力挖掘宁州贤文化资源,打造宁州祈福品牌;增强仪式感,发展祈福经济;培育新质业态,激活大消费。品民俗素斋盛宴、感受福文化的魅力,传承孝善的贤文化精神。形成驰名九州的慢生活圈、纳福天堂。 八贤祠祈福经济核心内容 策展框架及主要内容 一、前厅(礼贤堂) 主题:人文炳蔚 主要内容: A大门左侧:县政府《重修八贤祠记》(征文)(赑屃+石碑) B正面天井连接处:带八贤形象彩绘屏风+八贤赋(征文)。 C两侧墙:右墙1)八贤祠简介、2)祭祀及瞻仰须知, 左墙1)八贤祠展厅平面示意图、导览图; D两侧房:一个“带上幸福”祈福中心,一个管理办公室、总服务台、值班室及配电房; 二、后殿(寝堂)(祀贤堂) 主题:俎豆馨香 主要内容:八贤灵位及祭祀(“祀贤受福”福于心诚) A大神龛(内置八贤灵位)+两侧小神龛(内置13乡贤灵位)。 B大俎案、案上置三牲(整牛、整猪、整羊木雕)、樽、爵、壶等祭祀器皿各一,电子香炉、供鲜花台。 本文来自修水网 (按我国古代祭祀圣贤标准设置) D拜场:置功德箱1个(“福传万代”助学捐)、拜垫若干 E后殿两旁:祭祀钟鼓,左(东)大成钟(“一见钟情”爱情钟声、“情有‘触’钟”爱情福音)、右(西)建鼓(祭祀典礼之重要礼器)(“鼓传福到”击鼓求福) F后天井设供灯祈福亭、周围设挂福条。 H后殿设音箱,背景音乐:追念先贤的祭祀乐,如:《中和韶乐》 三、正殿(享堂)(述贤堂) 主题:光风霁月 主要内容:文旅经济活动区 A研学讲座:研学活动授课讲解 B文创中心:文创产品展示售卖 C文化展览:定期举办各类文化经济展览活动,包括艺术品展览、设计展览、手工艺展览等。 D天字壁背景:传统水波纹图案+传统团花图案(如蝙蝠、牡丹、鱼等),安置八贤塑像(带座1:1.5) F前天井布置门海,即“吉祥缸”,寓意:富水长流,聚气积福。设置:“福运当头”红包雨、“我最幸福”祈福抽奖等活动台。 四、右长廊 1、冷开运《八贤祠记》(内容见附二) 本文来自修水网 2、八贤事迹壁画(主要事迹见附三) 壁画主题及素材: 徐 禧:泾军殉节 仁勇无畏(元素:治策、殉职永乐城、神宗悲愤不食)(参考图编号为1) 黄庭坚:诗书双杰 忠孝大节(元素:诗词、书法、涤亲溺器)或(背景底画(松风阁+砥柱铭),主画面:苏门四学士+涤亲溺器)(参考图编号为2) 余 玠:膏泽滂沛 功德在民(元素:筑钓鱼城、乐山抗蒙大捷、开屯田奖农耕)(参考图编号为3) 莫 将:才足匡时 忠贞不二(元素:迎皇太后回銮、出使大金)(参考图编号为4) (1、迎皇太后回銮图绍兴十二年(金皇统二年)“八月,辛未,权工部尚书莫将与侍从、两省官十一人,以皇太后回銮,同班上贺。” ) 2、出使大金图(绍兴十年六月,莫将、韩恕使金,拘于涿州。至是,兀术有求和意,纵之归。) 宋朝寅:忧国忧民 激励忠义(元素:变卖家产竭力支助文天祥抗元、设馆执教)(参考图编号为5) 祝 彬:学绍朱程 性禀淳德(元素:学贯天才,性禀淳德,天毓奇才,明孔孟之正传,契程朱之奥旨,晚掇巍科,清誉素垂于中外,顷居藩郡,严威遥播于期。礼乐之卓,文章之杰。) 本文来自修水网 冷应澂:廉洁忠心 平寇御侮(元素:智平大寇、抑强扶弱、治官事当如家事,惜官物当如己物、善治乱局) 章 鉴:器局宽宏 持身洁谨(元素:支持文天祥抗元、为“满朝欢”、患难奚恤) 3、八贤祠与祠志 1)八贤祠历史 八贤祠始建于元至元己卯年(1339年),毁于明永乐十二年甲午岁(1414年)兵燹。 重建:民国4年乙卯十月(1915年)倡修,丙辰十二月(1916年)拓基,辛酉年(1921年)开建,壬戌年冬(1932年)告成。斥资八千余,栋宇轩广,有堂3个,厅(厢房)4个,廒房12间,从屋若干。 祭祀:前进中进(大堂、享堂)祀八贤神主8座,后进(寝堂)祀八姓一分主99座、二分主89座、四分主548座,厅二祀13乡贤。 2)《八贤祠志》 1931年,国民军十三军少将参谋、邑人冷开运倡修《八贤祠志》,1937年祠志告成,总6卷。由李烈钧作序,蒋介石题词,孙科写“修水八贤赞”,冯玉祥、林森、于右任、居正、邵力子、叶楚伧、戴季陶、李宗仁等国民党政要分别为徐禧、黄庭坚、余玠、莫将、宋朝寅、祝彬、冷应澂、章鉴题像赞。 高仿古匾+示文,古匾内容为蒋中正、孙科题词(阴刻、竖立)、国民党政要题像赞(阳刻、竖立)、李烈钧《八贤祠志序》等(示文并国民党政要简介)(相关题词像赞及示文见附四) HULING 4、展柜2个(展陈《八贤祠志》、八姓家谱、与先贤相关史志及书籍、相关碑刻(拓片)、宋代瓷器(最好是八贤用品、高仿)) 5、设置“笔定有福”祈福寄语,(互联网微信方式,或书法方式) 6、设置“六求得福”祈福定制(求学、求财、求健康、求爱、求子、求平安或“福、禄、寿、喜、财、安”)(定制产品,如:订制版“祈福智慧香囊”,“考生限定香囊”,“状元香囊” “开慧咒挂坠”“送子观音”“戴五彩手链”、“金刚结”等。 7、吃粽子、送艾叶特色祈福小吃,沐兰净手除五毒。(靠后面边) 五、左长廊 1、十三乡贤头像+生平简介 (宋)余良肱、(明)石彦诚、周季麟、周季凤、周期雍、查仲道、陈郇、余学贤、周希令、陈存之、查兆允、周必强、(清)万承风 2、展柜2个(展陈:乡贤姓氏家谱、与先贤相关史志及书籍、相关碑刻(拓片)、明清瓷器及物件(最好是乡贤用品、高仿)) 3、设置“一路福星”祈福路(灯谜竞猜活动) 4、“五福临门”招财纳福抽签画符台(《尚书》五福 寿;富;康宁;做好德;中榜。民间五福 福、禄、寿、喜、财 ) 本文来自修水网 5、设置“玉福礼堂”玉器送福专柜。 6、另外经常性开展:新年祝福、春节撞福、元宵闹福、中秋圆福、周岁抓福、生日庆福、新婚志福等祈福活动。 附 件 附一:八贤生平简介 徐禧(1043-1082),字德占,何市镇松林人。北宋名臣。熙宁初年,王安石推行新法时,以献“治策”二十四篇被召任经义局检讨,力助王安石变法,颇得王安石青睐。累升检正中书礼房公事、荆湖北路转运副使、知谏院、知制诰兼御史中丞。元丰初,吕惠卿在陕西,变更蕃汉战守条约。渭师蔡延庆反对,神宗使徐禧代之,升为直龙图阁使。其时,种鄂、沈括建造永乐城(今陕西米脂县西)抵御西夏之敌。元丰五年(1082)9月,西夏三十万大军进攻永乐城。徐禧领兵赴救,寡不敌众,旋被击溃,败退城中。西夏兵倾国而至,将永乐城包围。徐禧执刀率士血刃,以身殉职。神宗闻徐禧等战死,涕泣悲愤,为之不食。追赠金紫光禄大夫、吏部尚书,谥忠愍。 黄庭坚(1045-1105),字鲁直,号山谷道人,杭口镇双井人。北宋著名诗人、书法家。治平四年(1067)进士。历叶县尉、知泰和县、校书郎、《神宗实录》检讨官、著作佐郎、起居舍人等官,谥文节。四新旧党争,两次遭贬。与张耒、秦观、晁补之同为“苏门四学士”,与苏轼齐名,世称“苏黄”。擅文章、诗词,尤工书法。为“江西诗派”始祖。词风流宕豪迈,与秦观齐名。书法精妙,尤擅长行、草书,楷法自成一家,与苏轼、米芾、蔡襄并称“宋四家”。二十四孝“涤亲溺器”主人公。 修水网 www.xiushui.Net 余玠(1197-1253),字义夫,号樵隐,黄沙镇瑶村人。南宋末期名将,兵部尚书、拜资政殿学士。端平三年(1236),受知于淮东安抚制置使赵癸。嘉熙二年(1238),任招信军知军兼淮东制置司参议官。淳祐元年(1241),率军援救安丰(今寿县),升任淮东制置副使。是时,四川为蒙军进攻重点,晋见理宗,立下“愿假十年,手挈全蜀江山还于朝”的誓言,授兵部侍郎,四川宣谕使,领导四川抗蒙。到任后于合州(今重庆合川)城东钓鱼山上筑城,以抗击进犯蒙军。淳祐十二年,又率部西向嘉定府(今四川乐山)抗击50万南犯蒙军,大捷。后遭宰相谢方叔诬陷,理宗亦恐余拥兵擅制,召其还朝,余玠忧愤成疾,一夕暴卒。“蜀人莫不悲慕,如失父母”。 莫将(1080-1148),谱名文砚,字少虚,漫江乡尚丰人,南宋名臣。得荫于父,历任县令,有政绩。绍兴七年(1137),升为太府寺丞,翌年擢升为徽献阁侍制京畿都转运使,迁工部侍郎、权礼部尚书兼侍读奉使,继晋工部尚书,任京西路(治今河南洛阳市)宣谕使,拜敷文阁学士,知明州(治今浙江宁波市),后又改知广州。曾赴边疆抗金,以擅长外交著称,尝奉命出使金国。莫将以学问自结,屡授嘉奖。绍兴十八年(1148)十月卒于官,赠端明殿学士。 宋朝寅(1231-1297),号虎西,太阳升镇梁口人,南宋名臣。咸淳甲戌年(1274)进士,捷越擢晋资政殿大学士、工部尚书。时人称其有汉高祖入关除秦之果敢,有汉文帝执法之坚毅。在南宋王朝偏安一隅,败局已定时,他保持“不为敌所俘,不为敌所侮”之高节,毅然弃官为民,返回故里梁溪设馆执教育人。以忠义节操、普善济世著称于世。端宗景炎二年(1277),文天祥率军入赣抗击元兵时,宋朝寅与江西豪杰竭力支助,使抗元兵在赣斩获甚多,收回一些失地。终因国力衰弱,无力回天,文天祥被俘,拒降被杀。元成宗大德元年(1297)十二月,宋朝寅卒于家。 本文来自修水网 祝彬(1260--1336),字文夫,号悠然,何市镇火石人,元代名臣。幼好读书,孜孜不倦,元延祐年间以《诗经》考中进士。擢抚州路崇仁县丞。元泰定三年(1326)为湖广主考。天历二年(1329)和至元元年(1335)先后两次任江西主考。至顺三年(1332)晋翰林文字徵仕郎同知制诰兼国史院编修。元统二年(1334)归里,自号悠然居士。至元二年(1336)十月卒。皇上颁赠封三代。泰定四年(1327)《敕翰林院编修祝彬诰》称赞他“学贯天才,性禀淳德……礼乐之卓,文章之杰”。 冷应澂(1187-1276),宇公定,白岭镇桃树人,南宋名臣。宝庆元年(1225)中进士,初任庐陵主簿,以廉能著名,提为静江府司录。参军治狱平恕转运使范应铃又向朝廷力荐,升任万载知县。景定元年(1260),奉命往江上督发军队薪饷,得知德庆府前守政理政不严,纵豪吏渔猎庶民,即签发檄文,敦促犯官改恶从善,弃暗投明。檄文一出,作恶势力瓦解。后又建议朝廷采取抑强扶弱方略,旋即升为直属宝章阁大学士,知广州主管、任广南东路经略安抚使。其为官廉洁,忠心耿耿,常言:“治官事如家事,惜公物如己物。”应澂屡平大寇,尤其是在蒙军围攻襄樊之际,能致力于治乱,深受朝廷与百姓钦佩。景炎元年(1276)卒于家,葬平江龙门。 本文来自修水网 章鉴(1214-1294),字公秉,号杭山,别号万叟,杭口镇杨坊人,南宋名臣。理宗淳祐四年(1244) 以别院省试及第,累官枢密院御史、中书舍人、左侍郎、迁知政事。度宗咸淳十年(1274)拜右丞相兼枢密院使。元兵入侵,他积极主战,支持文天祥抗元主张。后因遭奸党左丞相王轮的迫害,罢相归田。章鉴为官清廉,政事严谨,虽为宰辅,犹如布衣。其“一生事业居民计,千里山河救国心”之肺腑之言,传诵甚广。咸淳十年,为家乡杭口捐资建造广济桥。晚年隐居于杭口杭山丛林中。卒于元至元三十一年(1294)九月。著有《杭山集》。 附二:《八贤祠记》冷开运 八贤祠记 冷开运 修水古称山水奥区、代产异人。宋为洪都分宁,人才之盛从莫如宋,若而先贤徐忠愍禧,黄文节庭坚,莫尚书将,余置制安抚使玠,冷学士应澂,章丞相鉴,宋尚书朝寅,祝翰林彬,尤其最著者也。翰林公入元始仕,而产于景定,故俱属之于宋。然则,言氏族者,必推八大姓,稽祀典者,必推乡贤其所由来尚矣。有祠翼然于县治东,云岩寺之西偏,曰八贤祠者。祠之名沿于宋,而吾子孙今始自为建置,实则创也。考云岩旧碑,髪僧李甘谷纪八贤施产甚详,洪如虎续刻,具列建祠年代,当时建自云岩俗所,谓报施主者。崇宁元年,文节书忠愍《云岩晦堂开堂疏》,勒于石,而为之题,其后称江东士大夫知晦堂是真归依处,其说盖出于黄龙清襌师,可见当时于士大夫争相引重,襌院报答施主,不遗余力耳。祠始建寺东,元至元己卯徙山门内东隅,其改建西偏,则在永乐十二年甲午也,明季烬于兵燹,乃就伽蓝堂,附祀八贤木主,上而溯之于明初,于元于宋屡建不一,见而七百余岁,无有能复举其事者。于今,则凡古迹之存亡,民物之盈虚,可概见矣。旧例每岁孟冬,寺僧诣八姓作会醮之约,登伽蓝者,惄焉伤之。民国乙卯十月,子姓相聚而言,曰:先人布施,匪以责报崇,祠不举谁职其咎,西偏祠之旧址也,宏广幽邃,迥出城市周,寻遗迹犹有,仿佛者存。《易》曰:穷则变,变则通,通则久,旧者新之。诚吾子孙之孝思,有不能自已,而时会亦有其适然者,是役也。运从诸子姓之后,丙辰十有二月,拓基而础之。逾年,有东粤之行,请于众得稍待焉。岁辛酉,莫丹忱先生偕八姓父老起而力董其事,经始于是年秋,越壬戌季冬而告成,鸠工庇材集资八千有奇,栋宇轩豁堂室鳞比,庖湢粢盛以次完备。诸子姓之旅进旅退者,视昔之附祀安否?大相径庭。爰奉先贤于大堂,而寝堂则裔主附焉。呜呼!世变相寻,礼教凌替,而追远报本。八姓之子孙,有如骨肉,虽岁时妥侑相沿已久,苟非在天之灵默牖其衷,又安能于数百年来,屡兴屡废之,余复睹此堂构聿新,春秋合祀耶。若夫,闻风兴起,激浊扬清,则在扶翼世教,奖进人材者之鸿图伟略,非吾侪之所敢期,顾以骏奔对越,彝训不忘其亦有显谟,承烈夙夜孳孳者,欤落成之日,父老命为文,勒石俾明巅末。遂沐手敬书,以诏来者。 内容来自xiushui.Net 附三:祠志中的八贤本传(校释) 徐忠愍公传 徐禧(1043—1082),字德占,洪州分宁人(今江西修水)。 北宋名臣。官至知制诰兼御史中丞。元丰五年(1082)追赠金紫光禄大夫、吏部尚书,谥忠愍。 少有志度,博览周游,以求知古今事变,风俗利疚,不事科举。熙宁初(1068),王安石行新法,禧作《治策》二十四篇以献,时吕惠卿领修撰经义局,遂以布衣充当检讨,神宗见其所上治策,曰:“禧言朝廷用经术变士,十已八九,然窃袭人语,不求心通者相半,此言是也。宜试于有用之地。”即授镇安军节度推官、中书户房习学公事。岁余,召对策国事,他表露出与朝廷百官相异的真知灼见,尽展才华,神宗龙颜大喜,以为“朕多阅人,未见有如卿者”。擢升他为太子中允、馆阁校勘、监察御史里行。当时,中丞邓绾、知谏院范百禄等人曾借故弹劾大臣李士宁以妖妄迷惑赵世居。徐禧主持正义,不与苟同,并奏议不应将李士宁定为反臣,后经查实,邓、范遭贬,而徐禧晋为集贤校理、检正礼房。 王安石与吕惠卿交恶时,邓绾告吕惠卿昔居父丧期,曾贷华亭富人钱五百万买田事。徐禧应诏参审,暗中帮助吕惠卿,解禧出为荆湖北路转运副使。元丰初(1078),才召回知谏院。吕惠卿在鄜延,欲变更蕃汉兵战守条约,诸老将不谓然,神宗颇为采听,下令各路推广,并遣徐禧前往筹划。渭帅蔡延庆持反对意见,神宗召回蔡延庆,使徐禧取而代之,被再升为直龙图阁学士。徐禧母丧服除后,又召知制诰兼御史中丞。邓绾守长安时,神宗知道邓与徐有隙,改邓绾知青州,徐禧亦降为给事中。 修水网 www.xiushui.Net 种谔西讨西夏(党项,大白高国),得银、夏、宥三州而不能守。延帅沈括欲尽城横山,瞰平夏,城永乐,诏禧与内侍李舜举往相其事,令括总兵以从,李稷主馈饷。禧言:“银州虽据明堂川、无定河之会,而故城东南已为河水所吞,其西北又阻天堑,实不如永乐之形势险厄。窃惟银、夏、宥三州,陷没百年,一日兴复,于边将事功,实为俊伟,军锋士气,固已百倍;但建州之始,烦费不赀。若选择要会,建置堡栅,名虽非州,实有其地,旧来疆塞,乃在腹心。已与沈括议筑砦堡各六。砦之大者周九百步,小者五百步,堡之大者二百步,小者百步,用工二十三万。”遂城永乐,十四日而成。永乐城的建成无疑给西夏构成了巨大威胁。 禧、括、舜举还米脂。夏兵数千骑趋新城,禧亟往视之。或说禧曰:“初被诏相城,御寇,非职也。”禧不听,与舜举、稷俱行,括独守米脂。先是,种谔还自京师,极言城永乐非计,禧怒变色,谓谔曰:“君独不畏死乎?敢误成事。”谔曰:“城之必败,败则死,拒节制亦死;死于此,犹愈于丧国师而沦异域也。”禧度不可屈,奏谔跋扈异议,诏谔守延州。 夏兵二十万屯泾原北,闻城永乐,即来争边。人驰告者十数,禧等皆不之信,曰:“彼若大来,是吾立功取富贵之秋也。”禧亟赴之,大将高永亨曰:“城小人寡,又无水,不可守。”禧以为沮众,欲斩之,既而械送延狱。比至,夏兵倾国而至,永享兄永能请及其未陈击之。禧曰:“尔何知,王师不鼓不成列。”禧执刀自率士卒拒战。夏人益众,分阵迭攻抵城下。曲珍兵陈于水际,官军不利,将士皆有惧色。珍白禧曰:“今众心已摇,不可战,战必败,请收兵入城。”禧曰:“君为大将,奈何遇敌不战,先自退邪?”俄,夏骑卒度水犯陈。鄜延选锋军最为骁锐,皆一当百,银枪锦袄,光彩耀日,先接战而败,奔入城,蹂后陈。夏人乘之,师大溃,死及弃甲南奔者几半。珍与残兵入城,崖峻径窄,骑卒缘崖而上,丧马八千匹,遂受围。水砦为夏人所据,掘井不及泉,士卒渴死者大半。夏人蚁附登城,尚扶创拒斗。珍度不可敌,又白禧,请突围而南;永能亦劝李稷尽捐金帛,募死士力战以出,皆不听。戊戌夜大雨,城陷,四将走免,禧、舜举、稷死之,永能没于阵。谥忠愍。 xiushui.Net 初,括奏夏兵来逼城,见官兵整,故还。帝曰:“括料敌疏矣,彼来未出战,岂肯遽退邪、必有大兵在后。”已而果然。帝闻禧等死,涕泣悲愤,为之不食。赠禧金紫光禄大夫、吏部尚书,谥曰忠愍。官其家二十人。 禧疏旷有胆略,好谈兵,每云西北可唾手取,恨将帅怯尔。吕惠卿力引之,故不次用。自灵武之败,秦、晋困棘,天下企望息兵,而沈括、种谔陈进取之策。禧素以边事自任,狂谋轻敌,猝与强虏遇,至于覆没。自是之后,帝始知边臣不可信倚,深自悔咎,遂不复用兵,无意于西伐矣。子俯自有传。 (评价:年少有为,学识满腹,仁勇无畏,但刚愎自用。著作:《治策》二十四卷) 黄文节公传 黄庭坚字鲁直,洪州分宁人。幼警悟,读书数过辄诵。舅李常过其家,取架上书问之,无不通,常惊,以为一日千里,举进士,调叶县尉。熙宁初,举四京学官,第文为优,教授北京国子监,留守文彦博才之,留再任。苏轼尝见其诗文,以为超轶绝尘,独立万物之表,世久无此作,由是声名始震。知太和县,以平易为治,时课颁盐策,诸县争占多数,太和独否,吏不悦,而民安之。 哲宗立,召为校书郎、《神宗实录》检讨官。逾年,迁著作佐郎,加集贤校理。《实录》成。擢起居舍人。丁母艰。庭坚性笃孝,母病弥年,昼夜视颜色,衣不解带,及亡,庐墓下,哀毁得疾几殆。服除,为秘书丞,提点明道宫,兼国史编修官。绍圣初,出知宣州,改鄂州。章惇、蔡卞与其党论《实录》多诬,俾前史官分居畿邑以待问,摘千余条示之,谓为无验证。既而院吏考阅,悉有据依,所余才三十二事。庭坚书“用铁龙爪治河,有同儿戏”。至是首问焉。对曰:“庭坚时官北都,尝亲见之,真儿戏耳。”凡有问,皆直辞以对,闻者壮之。贬涪州别驾、黔州安置,言者犹以处善地为骫(歪曲、枉曲)法。以亲嫌,遂移戎州,庭坚泊然,不以迁谪介意。蜀士慕从之游,讲学不倦,凡经指授,下笔皆可观。 修水网 徽宗即位,起监鄂州税,签书宁国军判官,知舒州,以吏部员外郎召,皆辞不行。丐郡,得知太平州,至之九日罢,主管玉龙观。庭坚在河北与赵挺之有微隙,挺之执政,转运判官陈举承风旨,上其所作《荆南承天院记》,指为幸灾,复除名,羁管宜州。三年,徙永州,未闻命而卒,年六十一。 庭坚学问文章,天成性得,陈师道谓其诗得法杜甫,学甫而不为者。善行、草,楷法亦自成一家。与张耒、晁补之、秦观俱游苏轼门下,天下称为苏门四学士,而庭坚于文章尤长于诗,蜀、江西君子以庭坚配轼,故称“苏、黄”。轼为侍从时,举以自代,其词有“瑰伟之文,妙绝当世,孝友之行,追配古人”之语,其重之也如此。初,游潜皖山谷寺、石牛洞,乐其林泉之胜,因自号山谷道人云。 据江西诗派,公为初祖,对后世诗坛产生深远之影响。其学诗尊杜甫,讲究法度,提倡诗要有“无意于文,夫无意而意已至”之髓,提出“点铁成金”、“夺胎换骨”之法。 公自幼孝顺父母,效法古圣先贤德行,恪尽子道,至诚孝事。其长期侍奉母亲之“涤亲溺器”典故,被列入中国古代《二十四孝》,一直被人们传颂。 (评价:苏东坡曾经赞叹说:“瑰伟之文,妙绝当世;孝友之行,追配古人。”“其诗超轶绝尘 ,独立万物之表。”) HULING 余义夫公传 余玠(1l97—1253),字义夫,洪州分宁人。少为白鹿洞诸生,家贫落魄,流寓蕲州(今湖北蕲春)。赴襄淮作长短句谒淮东制置使赵葵,留之幕府。南宋绍定三年(1230),因建军功任武校,积功升制置使参议官、工部郎官。嘉熙三年(1239),于汴城河阴抗击蒙古军,升直华文阁、淮东提点刑狱兼知淮安州、淮东制置司参谋官。淳佑元年(1241),率兵应援安丰,拜大理少卿,升制置副使。是时,四川为蒙军进攻重点,已失土地三分之二。淳祐二年六月,余玠晋见理宗,立下“愿假十年,手挈全蜀江山还于朝”的铮铮誓言,并切中时弊,坦诚进奏治国方略。被理宗赞曰:“卿议人说物,皆非寻常,可独当一面”即授以兵部侍郎、四川宣谕使,从此,领导四川抗战。淳祐三年十二月,又升至四川安抚制置使兼重庆知府和四川总领兼夔路转运使。余玠到任后,招贤纳士,共商大计。首先于合州(今重庆合川)城东钓鱼山上筑城,移州府于钓鱼城内,并亲为帅府书竖“一柱擎天头势重;十年踩地脚跟牢”的楹联来明其心志。继而陆续修筑大获,青居、云顶、神臂、天生等十余座城堡,构成了完整的防御体系,顽强地抗击进犯的蒙古大军。与此同时,余玠为粮丰财富还实行了一系列轻徭薄赋、广开屯田、拓宽商贸、严惩贪官、培养人才的政策,使百业俱兴,综合实力大大增强。以至与蒙军大小战斗三十六次,屡战屡勇,战之能胜。淳祐十年(1250),他率部一直进兵到蒙古军占领的兴元(今陕西汉中),十二年(1252)十月,又率部西向嘉定府(今四川乐山)抗击50万南犯的蒙古军,取得了一场空前的会战大胜,开创了南宋抗蒙以来罕见的良好军事、政治、经济势态。在此次会战中,余玠将不受节制、鱼肉百姓的蜀将王夔按军法惩除,引起了其党羽时任云顶山统制姚世安的忌愤。姚极力寻余玠之短,并买嘱蜀籍宰相谢方叔子侄向谢潴谮言。谢方叔偏听偏信,在理宗面前造谣中伤余玠。理宗也恐余玠将来以功臣名将拥兵擅制,加之参政知事兼知枢密院事徐清叟屡奏余玠不知事君之礼,便在十六天内连下两道“金牌”令,快马接力召余玠还朝。恰在此时,余玠由于积劳成疾,一夕暴卒。蜀人闻信,无不如“悲失父母”。翌年六月,余玠长子余如孙(字师忠,官大理寺承)也惨遭贾似道等谋害。 修水网 www.xiushui.Net 附四:序、题词、像赞 《八贤祠志》序 李烈钧 义宁人物,以宋代为最盛。余观义宁旧志,宁对一篇,八贤彪炳,未尝不悠然而思古也。夫人物之蔚兴关乎运会,而运会之隆盛必有肇端。黄文节鲁直,超轶绝尘,苏长公言之矣。自其历馆职,而涪、而黔、而戎、而荆渚、而宜州,政事文章,震铄古今。间发吟咏,亦开西江之派。徐忠愍德占,《太平治策》三卷,郑樵《通志》列入兵家边策,卒至取义成仁,身殉西厦,北狩之役。莫公少虚,握节出疆,迎銮返旆,是皆赫赫于北宋者。迨至辽金浙亡,蒙古勃兴,河阴、兴源、嘉定每战必捷,则惟四川置制使余公义夫有以致之。彼其修学养士,树德立威,尤○矣哉。若夫襄樊受围之际,积粟缮械备仓,卒而平大寇者,非冷学士应徵之力耶?迹其规划军国,固不后于余公,匪独仁廉忠孝,著循良于德庆、广南已也。至于宋尚书之激励忠义、章丞相之持身清谨、祝翰林之学绍朱程,上窥孔孟,巍巍八贤,后先辉映。修江文献,洵莫盛于斯矣!其由高祖太宗,长养涵濡,有以绵奕,世之运会乎?虽然世变相寻,儒风凌替,高文典策,熟为征求,重以兵○频仍,子孙迁徙,胜迹沧桑,史乘剥蚀,呜呼!文献不足杞宋,向悲此八姓之裔,所以亟欲垂诸久远者也。甲戌之秋,予造修水,与诸父老凭吊先贤遗迹,辄徘徊累日,而不忍去,顷以祠志告成,灵源老人寓书都下,请锡一言。余维流风余韵,感发兴起。其关于人心风俗,原非浅鲜,而益以属辞比事,远绍旁搜。则比诸范金铸像不尤显耶?斯编揭以例言,厘然分卷。其间有沿用旧例者,有变而不共其正者,盖古今运会之所趋,文化与之俱进未可胶柱以鼓瑟也。本承先启后之忱,殚扶世翼教之力,编摩精审,晚近其难之。他日重溯修江,吾将策杖以观后贤之盛,跄跄跻跻,接踵八贤,固可即斯编,以觇其陶成之有自也。 修水网 附:李烈钧(1882 -1946),中国近代民主革命家。时任国民革命军陆军二级上将。 题修水八贤 蒋中正 邑有文献,令应孔彰。守典追远,肯构肯堂。明禋念祖,一瓣心香。发扬幽光,山高水长。 附:蒋介石(1887 -1975),又名中正,近代中国政治人物,时任国民政府主席、国民党军事委员会委员长。 修水八贤赞 孙 科 修水山川,雄奇幽邃。笃生哲人,焜耀宋代。觥觥山谷,文章骏迈。忠愍大节,仁勇无畏。义夫治蜀,膏泽滂沛。少虚出疆,忠贞不二。宋祝冷章,文学政事。后先辉映,史册并载。奕叶流芬,人文炳蔚。俎豆馨香,八贤宛在。 附:孙科(1891—1973),孙中山长子,民国时期著名政治人物,南京国民政府立法院院长。 徐忠愍公德占先生像赞 冯玉祥 布衣腾达,胸蟠甲兵。泾军殉节,宋殒长城。畴起文弱,儒将如公。千载亲炙,奕奕英风。 附:冯玉祥(1882年-1948),民国时期西北军阀首领,时任南京国民政府军事委员会副委员长、国民党中常委。 黄文节公像赞 修水网 www.xiushui.Net 林 森 忠孝大节,炳耀千古。不磷不淄,贞操纯固。养气浩然,塞乎宙宇。余事诗歌,西江初祖。 附:林森(1868-1943),中国近代政治家、民主革命家,时任中华民国国民政府主席。 余义夫公像赞 于右任 十年西蜀,治臻上理。宋室屏藩,惟公是倚。功德在民,哀弥考妣。仪型百世,精神不死。 附:于右任(1879-1964),中国近现代教育家、书法家、诗人。时任南京国民政府监察院院长 莫少虚公像赞 居 正 才足匡时,而名弗彰。力可回天,而愿克偿。瞻遗容之肃穆,宜永荐乎馨香。 附:居正(1876—1951),中国近现代民主革命家、政治家、法学家,时任国民政府司法院院长。 宋尚书虎西遗像赞 邵力子 六百余年久,名贤事未湮。时衰空感忾,政简识弥伦。投老仍忧国,挥弋尚勉人。清芬垂道貌,祠庙肃明禋。 附:邵力子(1882-1967)中共发起人之一,时任国民党宣传部长、国共合作国民党谈判代表, 祝悠然先生像赞 叶楚伧 学莫切于慎独,治莫急于求贤。俯仰无愧,洵自乐其性天。本修己以衡寸,庶体用而俱全。谁克臻斯旨者,吾惟想像夫悠然。 内容来自xiushui.Net 附:叶楚伧(1887—1946),国民党官僚,政治活动家。时任国民党中央宣传委员会主任委员、立法院副院长,兼国民党中央执行委员会秘书长。 冷公应澂遗像赞 戴传贤 起家主簿,扬历安抚。百世堪称,平寇御侮。 附:戴季陶(1891—1949),名传贤,字季陶, 中国国民党元老,时任国民党中央常委、考试院院长 章公杭山赞 李宗仁 欲出匡时,而遭时之不可为。退止洁身,而未以身同天下之安危。盖其目击朝纲之败,国势之衰,徒分亡国之咎,难为大厦之支!敝屣荣利,而径去迹,恇怯而心可悲!迨以被累放归田里遨嬉。横来匿玺之谤,几于不测之罹。幸素行之高洁,终身泰而名垂。洎夫炎宋祚倾,陵谷迁移,佯狂避世,山岨水涯。虽未能扶义而起,复我邦族,要视腼顔臣妾于胡虏者,公犹不失为吾汉族男儿。 附:李宗仁(1891-1969),国民革命军陆军一级上将、中国国民党“桂系”首领,时任北上抗日第五路军总指挥(第五战区司令长官),驻节徐州。 附5: 入祠乡贤简介(13人) 余良肱,字康臣,是洪州分宁(今江西修水)人。他在宋仁宗天圣四年考中进士,历任多个官职,包括荆南司理参军、大理寺丞、湘阴知县、杭州通判、虔州知州、南康军知军、三司使判官、明州知州、润州知州、宣州知州等。在任职期间,余良肱以公正无私、勤政爱民著称。例如,在湘阴县任职时,他解决了当地拖欠税米的问题;在杭州通判期间,他修建了石堤以防止江潮泛滥;在虔州知州任上,他全力帮助弱子寡妇;在明州知州任上,他提出了治理汴渠的合理建议,尽管未被采纳,但他坚持正确的观点,不屈服于压力。最终,余良肱以八十一岁高龄去世卿、知润州,迁光禄卿、知宣州,治为江东最。请老,提举洪州玉隆观,卒,年八十一。 修水网 www.xiushui.Net 石彦诚(1369-1424),一名作彦成,字诚之,江西南昌人。明朝政治人物、进士。建文二年(1400年),石彦成中式三甲第五十七名进士。担任徐闻知县,多有政绩。后参与修编《永乐大典》。大学士杨溥欲举荐,可惜早逝。永乐二十二年甲辰(1424)殁于安乡太平,享年55岁,葬于彭桥源虎形(今彭桥村集镇西南小溪边),后享祀宁州文庙乡贤祠。 周季麟(1445-1518),字公瑞,江西南昌府宁州(今修水)人,明朝成化八年(1472)进士,任兵部主事、员外郎、郎中、浙江左参政、河南右布政使、左布政使。升任右副都御史、甘肃巡抚、陕西巡抚、顺天巡抚。弘治十八年(1505),以病乞归。后刘瑾擅权,以事罢官,又罚米千石。刘瑾被诛,按例复官未用。正德十三年(1518)十二月,去世。 周季凤(1464~1528),周季凤,字公仪,号未轩,是明朝江西宁州(今江西省九江市修水县宁州镇)人,生于1464年,卒于1528年。他在弘治二年(1489年)成为举人,弘治六年(1493年)考中进士,并在都察院观政。周季凤的仕途起步于刑部贵州司主事,后历任多个官职,包括湖广左布政使、南京刑部右侍郎等,曾成功平定郴州起事。他的主要著作是《未轩漫稿》。周季凤以耿直有节操著称,杨一清评价他“耿耿有介,不为物挠”。他的一生经历了明朝的正德和嘉靖两个年号,最终在嘉靖七年(1528年)去世 本文来自修水网 周期雍(1479年—1551年),字汝和,别号泉坡,是明朝江西宁州(今江西省九江市修水县宁州镇)人。他在正德三年(1508年)考中进士,随后被授官为南京御史。周期雍以正直敢言著称,在任职期间,他曾弹劾兵部尚书王敞依附刘瑾,并为被刘瑾排挤的官员申冤,请求皇帝重新启用他们。此外,周期雍还揭发了陈金讨伐江西叛军时纵容苗族烧杀抢掠的罪行,并在清军广东时弹劾了镇守武定侯郭勋。后来,周期雍历任多个官职,包括浙江参议、湖广按察使,最终升至刑部尚书。他在嘉靖十九年(1540年)因郭勋的排挤而辞官,之后在家中生活了十年后去世 查仲道, 字文夫,是明朝江西宁州(今江西省九江市修水县)人。他在正德九年(1514年)考中进士,随后被授予兵部武库司主事的职位。查仲道因劝谏武宗南巡而被廷杖,嘉靖初期,他历任郎中,后来出任杭州知府。在任杭州知府期间,查仲道因阻止织造太监吴勋的横暴行为而被诬告,随后被贬为福建都转运盐司同知,之后又转任汀州知府,并在任上去世。据《弇山堂别集》记载,查仲道曾因与太监吴勋冲突而被诬告,但最终得以复职 。查仲道以其正直和勇于劝谏的行为被后世所称道 陈郇,字邦达,高市黄土岭人,髫年入泮。乐善好施,乡族子弟无教者,为立塾;闾里有贫病者,给药饵;死无葬所者,授以地。成化四年,邑大祲,有司劝分,郇出粟七百石以赈,例授八品冠带。明年,提学佥宪李公龄廉其名,劝修文庙、儒学,不假众力,甫五越月告成。宪副夏公寅记其事于石,崇祀乡贤。 修水网 www.xiushui.Net 余学贤, 字复初,高市人。言简行慎,领万历癸酉乡荐,计上公车一十有五,授知县,不就。曳履踵决,履燃及衣,而卷不释手。一日火起,肃衣再拜曰:"贤以德凉行薄,天焚吾居示警足矣,万勿及吾邻。”随风返,火熄,见者异之。计借京师买妾广嗣,妾以远行,向父母哭之,哀贤即反。妾归家,置聘金不问。常修学宫、敬一亭,乡贤祠及明伦号舍。万历十六七年,岁祲,同州牧广设粥米赈济。又,建立雪亭,集乡塾子弟讲明经义。享年七十有九,崇祀乡贤。 周希令(1566-1622)字子仪,号浒西,宁州高乡犀津丁田(今修水县城黄田里)人。万历庚子(1600年)乡试举人,万历四十一年癸丑(1613年)中周延儒榜进士,授翰林院庶吉士。乙卯(1615年)授兵科给事中,庚申(1620年)转礼科右、左给事中,户科给事中。光宗朱常洛即位,周希令上中兴十二要疏。壬戌(1622年)春闱,周希令为考官房师,所选拔入围的都是才学出众的人才,其中有状元文震孟。这年八月,皇帝嘉奖其功劳,周希令晋阶太常寺少卿,九天之后因劳累过度,逝于任上。 陈存之, 号东州,说模次子,郇之嗣孙也。孝友性成,笃学励行。以太学授沛县主簿。会黄河为患,捐俸修堤,寒暑不辍。出架收荒,全活无算、廉介不苟取,归收田租给用。部院交荐,赐加服俸。以疾致仕,土民挽留,拥马首者如堵。归,惟课训子弟及乡塾俊秀者。覃心经史,撰有《过庭训》(家传》请书、建文庙,广义冢、赈乏绝、睦族党,七举而。崇祯庚午,子以森,以相、以傈,克继先志,复修赏官。知州胡公如川额其门日“弈世济美”。崇祯七年,崇祀乡贤祠,知州张大绅匾其堂曰“祖孙乡贤”,用昭世德云。 本文来自修水网 查兆允, 字六征,别号濂洲,是高市人。他的祖父查仲儒曾任眉州通判,父亲查应元曾任黄州通判。查家历代以高官显贵和忠义著称。查兆允自幼受到良好的家庭教育,自律严格,举止庄重,行为得体。他通过选拔贡生被任命为浙江湖州的通判,查兆允在任内保持清廉和机敏,政治上朴实无华,深得民心,社会安定。万历二十六年,因病辞职回乡。他隐居三十年,不涉足官场,将自己的书房命名为“心远地自偏”。他享年八十九岁。州里的士绅们仰慕查兆允的德行,都请求将他列入贤良祠供奉。崇祯十一年正月,皇帝下旨,批准查兆允入祀乡贤祠。他的次子查尧觉早逝,留下幼子,而长子查尧安三次中举,他抚养侄子,亲情不减。 周必强 ,号抑而,先春之子,半周失怙。幼颖异,日记数千言,长饩于庠,耿介自持,刚方不屈。事祖母及生母左右,尽欢。以《春秋》应乙亥拔贡廷试。遇例,题旌母熊氏,表其贞节。人称克孝,能慰先志。授山阳县县丞,理烦治剧,政绩卓著。升清河知县,育士爱民,摘伏如神。秩满,擢工部主事。归家,训课子弟。凡邑大事,随时裁决。匡济时艰,识者叹为不世出之才。殁,祀乡贤祠。庚申志旧传。 万承风(1752年-1812年),字卜东,一字和圃,宁州安乡汤桥(今修水县黄沙镇汤桥)人。万承风自幼勤奋好学,成绩上乘,十八岁时成为秀才,先在其外祖父家教私塾,后往庐山白鹿洞书院求学,三十岁再考中进士,从此走上仕途。随后,他选为庶吉士,授检讨,入值尚书房,以后再迁翰林院侍读。万承风和曾经担任过宰相的刘墉、翰林院编修的秦承业一道,担任后来成为宣宗道光皇帝的旻宁的老师,侍读其读书长达二十余年,在长达二十余年的帝师生涯中,他治学严谨,讲席从容。嘉庆十七年(1812)秋,刚届花甲的万承风因患风痹引疾还乡,不久逝世,享年六十一岁。万承风逝世后安葬于家乡长茅芦花埚,后其名入祀乡贤祠。 本文来自修水网 |


















